Rohdiamant
Beschreibung
Die denkmalgeschützte Rotklinkervilla wurde im Jahr 1912 von dem namhaften Architekten Emil Hinrichsen erbaut. Sie bildet ein Ensemble mit den Häusern der Dürerstraße 5-13 und der Cranachstraße 63. Die jetzigen Eigentümer haben die Villa mit einem fachkundigen Architekten substanziell teilsaniert. Die Elektrik ist vorbereitet, im Keller fertiggestellt. Die Heizungsanlage (Gasbrennwerttherme) wurde komplett erneuert und der Keller mit neuen Heizkörpern ausgestattet. Das Dach erhielt eine Neueindeckung, zusätzliche Velux-Fenster sorgen für mehr Tageslicht. Haus- und Grundstücksentwässerung wurden fachgerecht saniert, Dichtheitsprüfung liegt vor. Die historischen Sprossen-Holzfenster prägen den ganz besonderen Charme dieser Villa. Die größtenteils im Originalzustand befindlichen Parkett- und Dielenböden, sowie das lichtdurchflutete Treppenhaus, zeichnen sich durch eine hervorragende Qualität aus. Mehrere Balkone im 1. Obergeschoss bieten zusätzliche Austrittsmöglichkeiten. Die außergewöhnlich große Garage im Haus bietet Platz für bis zu 3 PKW mit innenliegendem Verbindungszugang.
Ausstattung
WUNSCHerfüllung pur! Bereits beim Eintreten begrüßen Sie der unverkennbare Charme und die lichtdurchfluteten Räume dieser einladenden Villa. Der Grundriss mit vielfältigen Nutzungsmöglichkeiten vermittelt auch im noch nicht fertig sanierten Zustand ein großartiges Zuhause-Gefühl. Ineinander übergehende Räume laden zur Geselligkeit ein. Bodentiefe Fenster geben den Blick in den Garten frei. Die noch roh verputzten, glatten Wände, der sehr schöne Stuck, historische Buntglasfenster und die originalen Stilelemente können durch Sie nun den letzten, persönlichen Schliff erhalten. Im Erdgeschoss befinden sich neben der herrschaftlichen Halle großzügige Räumlichkeiten. Das 1. und 2. Obergeschoss bieten Schlafräume nebst Badezimmer. Das Dachgeschoss verfügt über viel Platz, der als Stauraum oder weitere Ausbaureserve genutzt werden kann. Im Keller befinden sich die Garage (für bis zu 3 PKW), ein Raum mit Gartenzugang und weitere Abstellräume. Eine ideale Villa für ein rundum glückliches Familienleben mit „Allem“ was dazu gehört. Als neue Eigentümer können Sie nun die Fertigstellung nach eigenen Vorstellungen vornehmen. Lassen Sie sich bei einer Besichtigung inspirieren verbunden mit der Vorfreude auf Ihr neues Zuhause. Wir freuen uns darauf, Ihnen dieses Unikat persönlich zu zeigen!
Lagebeschreibung
Diese Immobilie befindet sich in Top-Lage der Elbvororte im beliebten Stadtteil Othmarschen, einem der traditionsreichsten und schönsten Wohngebieten der Hamburger Elbvororte. Die nahe gelegene Waitzstraße mit individuellen Einzelhandelsgeschäften, Boutiquen und Cafés bietet eine besondere Lebensqualität. Kindergärten, Grund- und weiterführende Schulen (drei Gymnasien sowie die Internationale Schule) sind in wenigen Gehminuten zu erreichen. Die Elbe, der Jenischpark und verschiedene Sportvereine wie z. B. der Groß Flottbeker Tennis, Hockey- und Golf-Club befinden sich in unmittelbarer Umgebung. Die Anbindung an den öffentlichen Personennahverkehr ist mit der S-Bahnstation Othmarschen und mit verschiedenen Buslinien als sehr gut zu bezeichnen. Die Hamburger Innenstadt ist sowohl mit der S-Bahn als auch mit dem Auto in ca. 15 Minuten erreichbar. Über die Autobahn A7 sowie mit dem ICE-Bahnhof Altona ist Othmarschen unmittelbar an bundesweite Verkehrswege angebunden. Der Hamburger Flughafen ist in ca. 20 Minuten zu erreichen.
Weitere Beschreibung
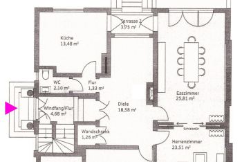
Das Haus steht unter Denkmalschutz. Ein Energieausweis ist nicht erforderlich. Es handelt sich um ca. 497m² Wohn,- Nutzfläche nach WflVo.
Energieausweis
Ein Energieausweis ist nicht nötig, da die Immobilie unter Denkmalschutz steht.











